
■建築施工図
- 掘削図
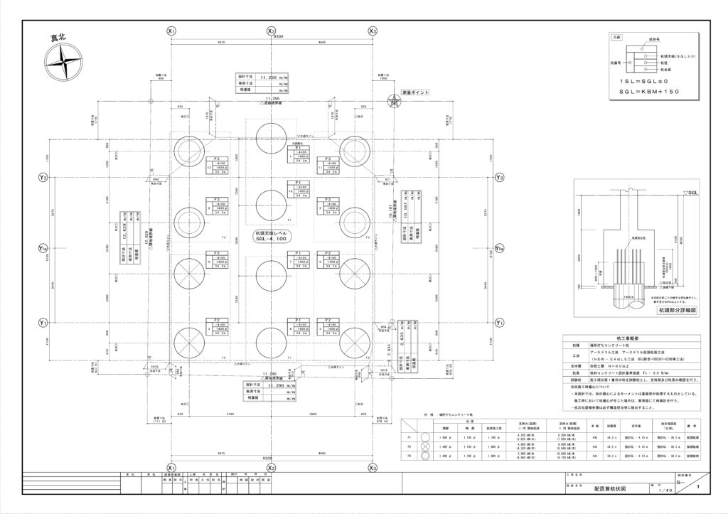
- 杭伏図
- 遣り方図
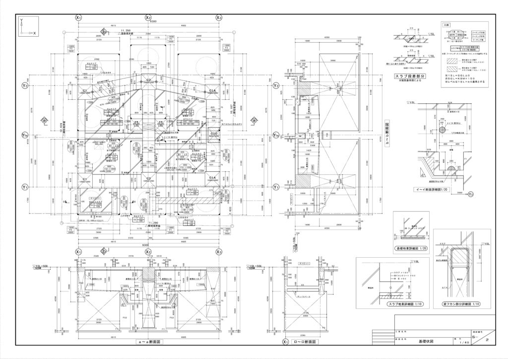
- 基礎伏図
- 各階躯体見下図
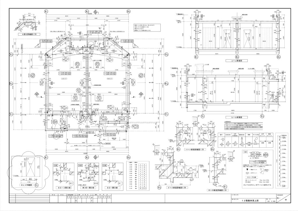
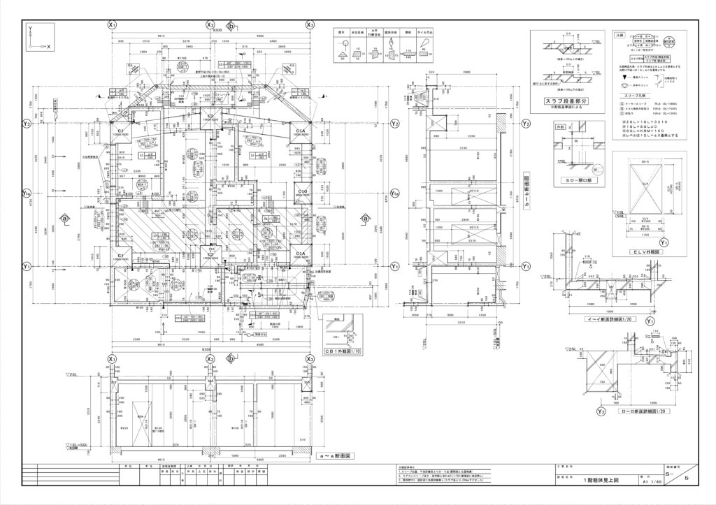
- 各階躯体見上図
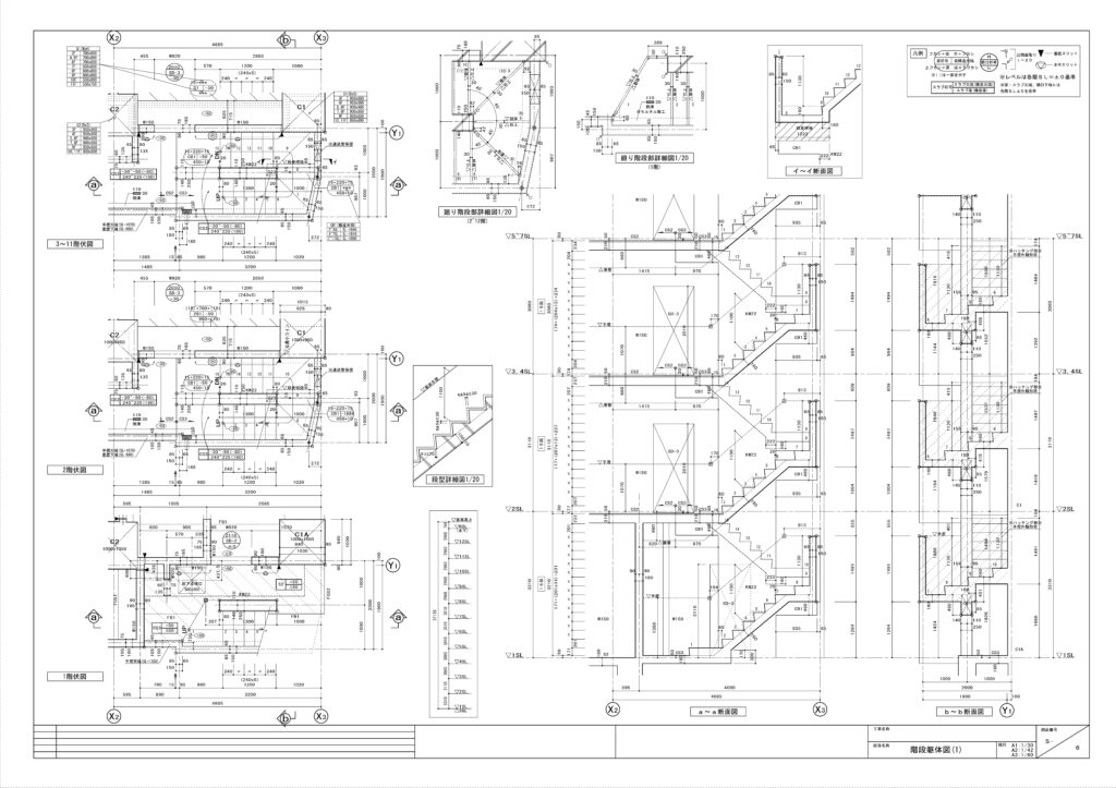
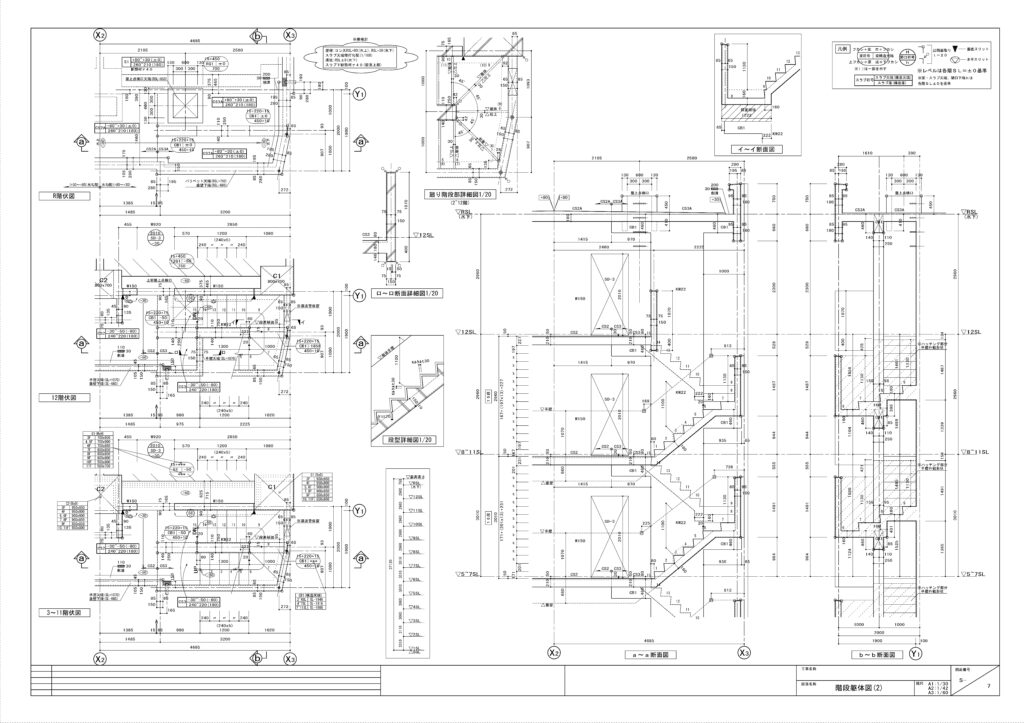
- 階段図
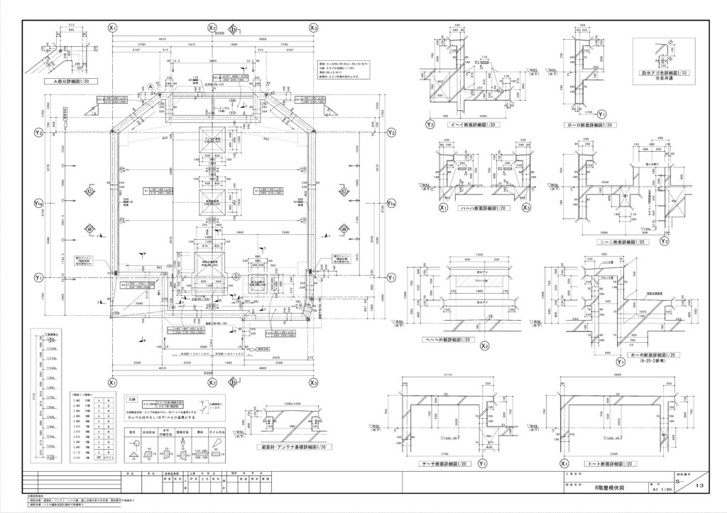
- 屋根伏図
- 外構図
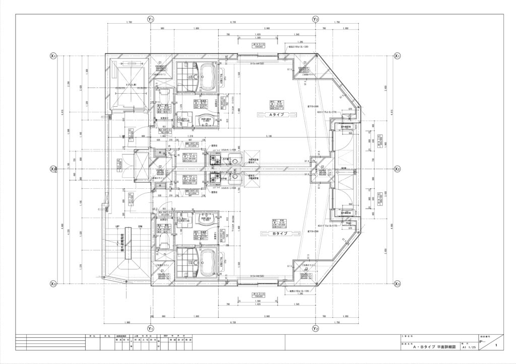
- 展開図
- 配筋図
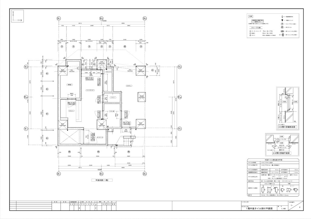
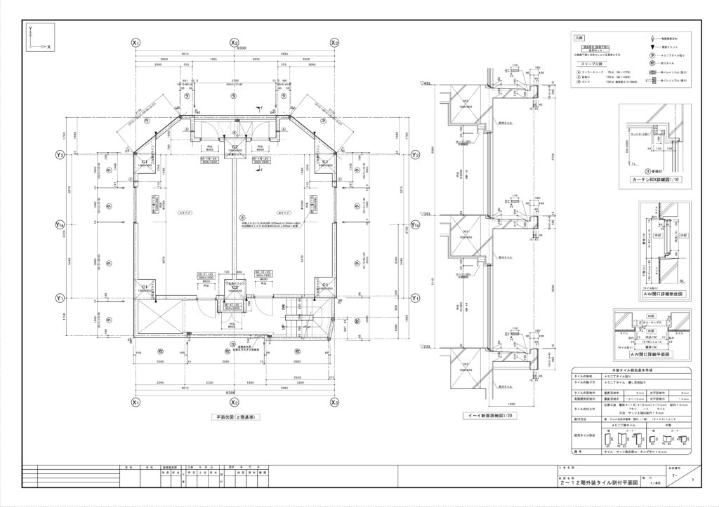
- 外装タイル割付図
- パネル・セパ割図
- 天井インサート図
- 天井割付図
- 共用詳細図
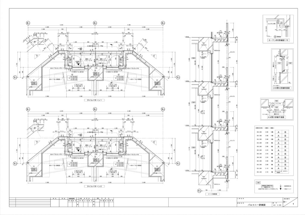
- 内部詳細図





















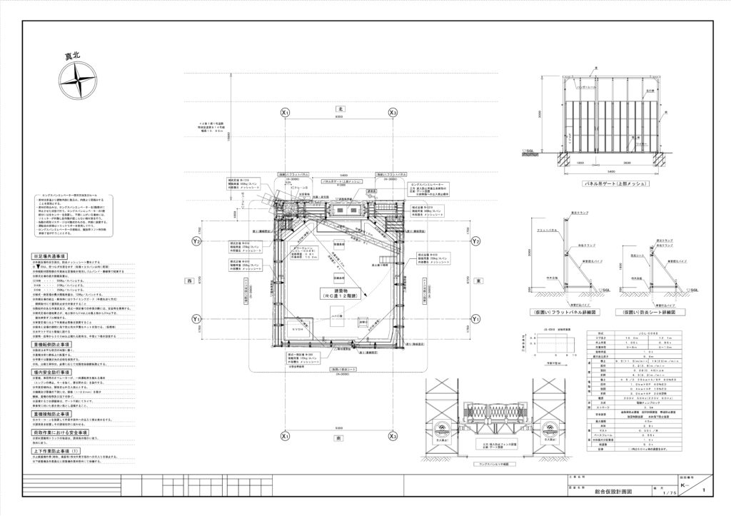
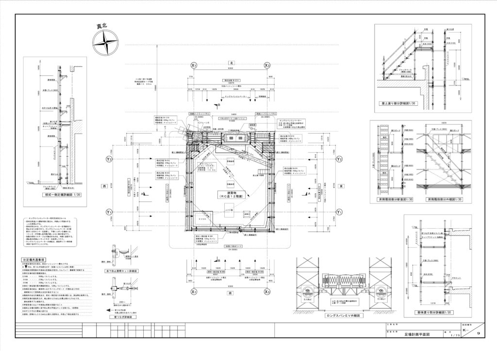
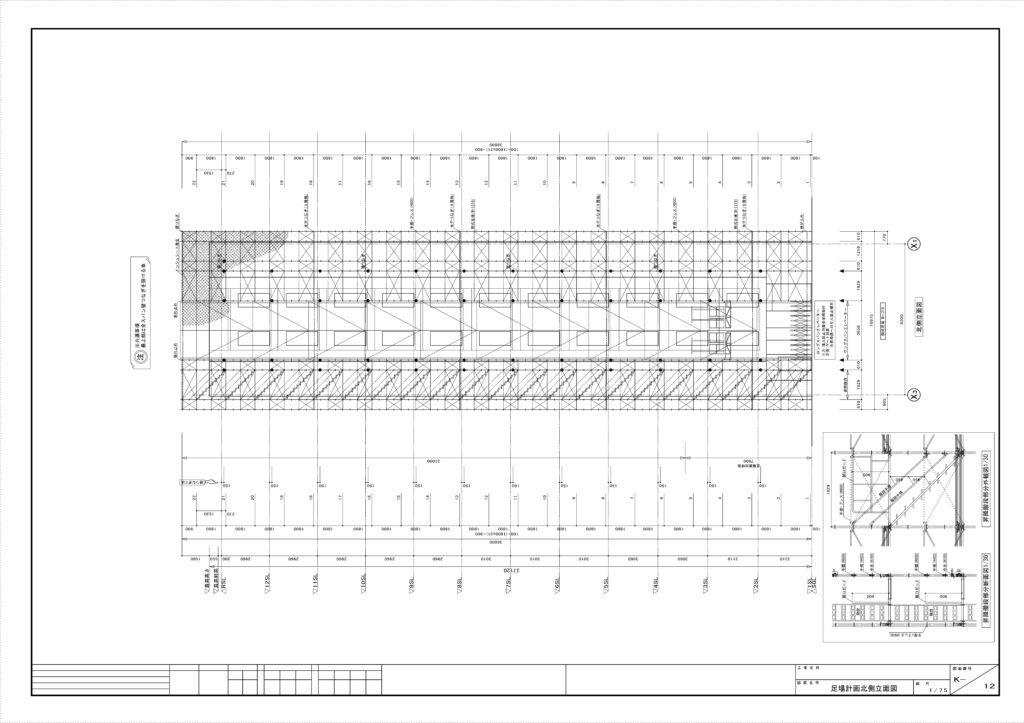
■仮設計画図
- 総合仮設計画図
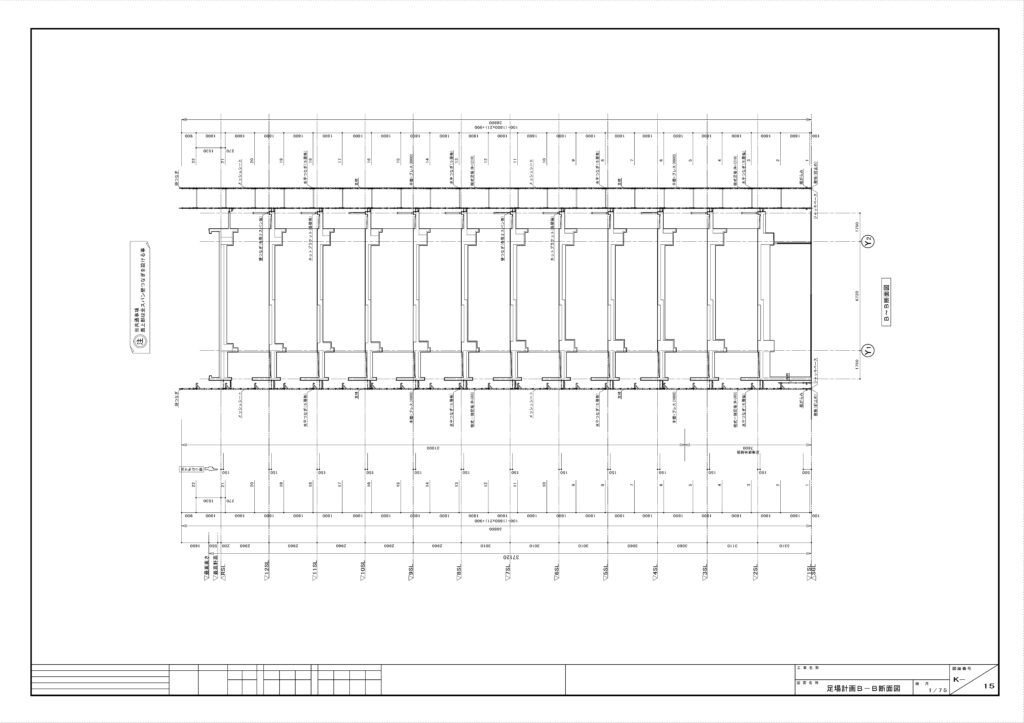
- 足場計画図
- 型枠支保工計画図
- 本杭打設計画図
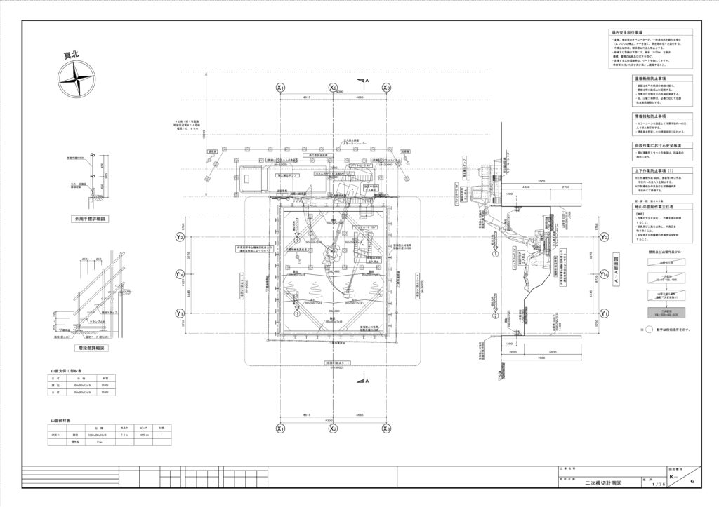
- 山留計画図
- 乗入構台計画図
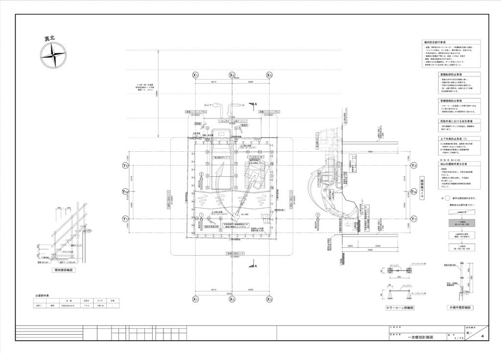
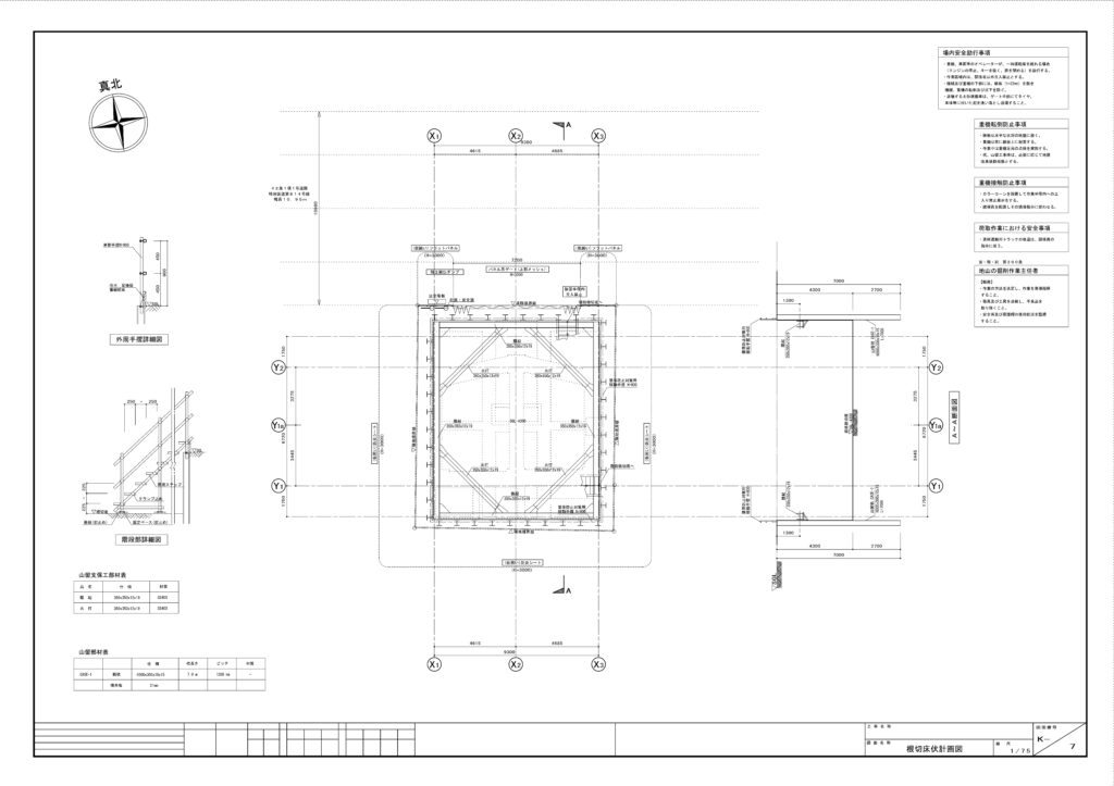
- 根切計画図
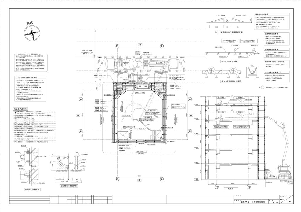
- コンクリート打設計画図
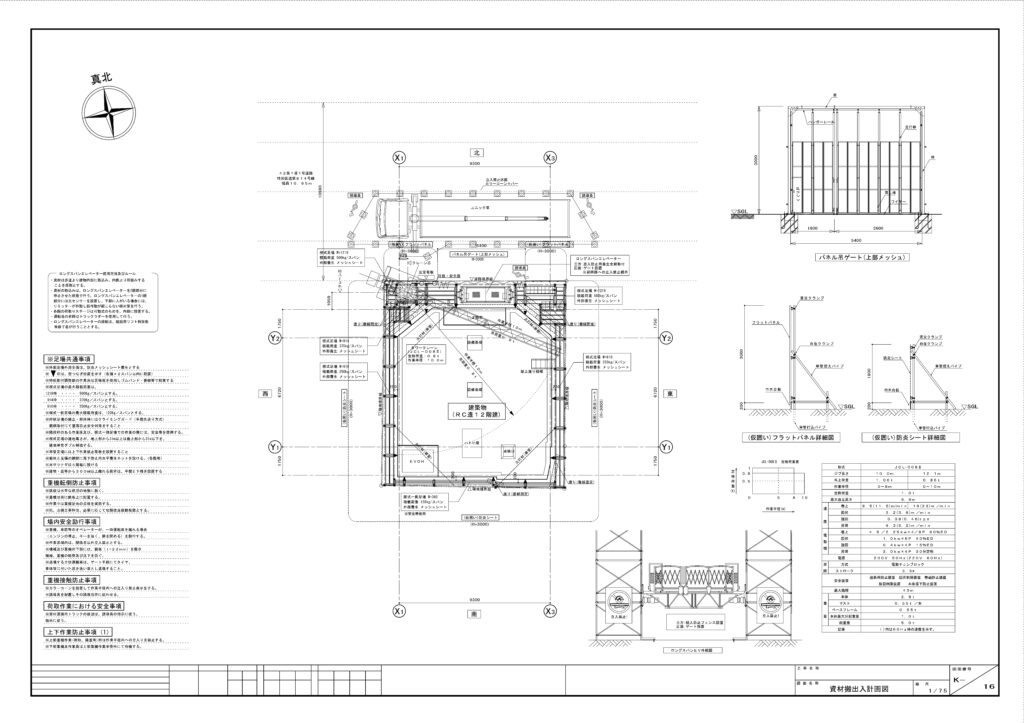
- 資材搬出入計画図
- 鉄骨建方計画図
- 吊り足場計画図















■申請書類・構造計算
- 足場構造計算書
- 建設工事計画届け出書類作成
- 型枠支保工構造計算書
- パーマネント工法検討計算
- 機械等設置届出書類作成
- 遠藤掘削申請図
- 道路使用申請図
- 線路近接協議用図面







■その他
- 配筋写真資料作成
- 竣工図用図面修正
- 図面トレース
- データ変換(PDF・JWW・DWG・DXF)
- 大判印刷(A1・A2・カラー)
- 図面製本
- 建築模型作成
























